藤和シティコープ西洞院 705号室
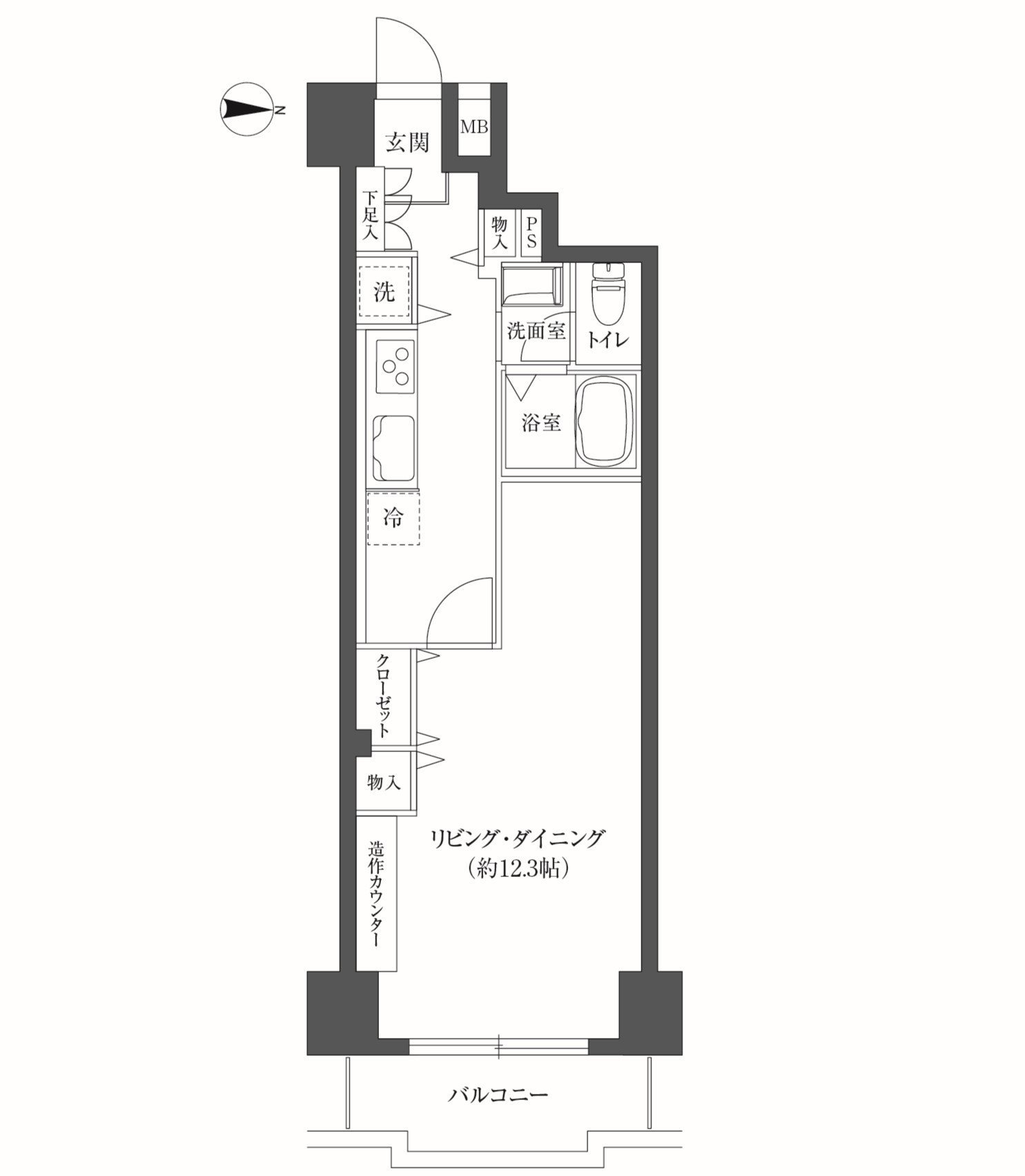
間取り
360°コンテンツ
専有部
リノベーション内容
2024年6月 リノベーション完了
◆リビング窓際に、カウンターを造作◆
システムキッチン交換/ユニットバス交換/洗面化粧台交換/トイレ交換/全室天井・壁クロス張替/全室フローリング張替え/照明器具新調
物件特徴・設備
- 眺望良好
- 2駅利用可能
- システムキッチン
- ガスコンロ三口
- 食器洗浄乾燥機
- 全室フローリング
- スーパー徒歩10分以内
- 小学校徒歩10分以内
- 総戸数30戸以上
アクセス
〒604-0041
京都府京都市中京区西洞院通蛸薬師下る古西町440番地
阪急電鉄京都線「烏丸」駅 徒歩8分
京都市営地下鉄線「四条」駅 徒歩8分
【周辺環境】
京都市立洛友中学校 徒歩13分
京都市立洛中小学校 徒歩10分
京都新町病院 徒歩4分
ライフ 四条烏丸店 徒歩4分
セブンイレブン 京都四条西洞院通り店 徒歩1分
ドラッグひかり四条堀川店 徒歩5分
物件詳細
- 郵便番号
- 〒604-0041
- 所在地
- 京都府京都市中京区西洞院通蛸薬師下る古西町440番地
- 用途地域
- 商業地域
- 土地権利
- 所有権
- 間取り
- 1K
- 専有面積
- 40.01㎡
- バルコニー面積
- 4.85㎡
- 築年月
- 1984年10月
- 総戸数
- 57戸
- 構造・規模
- SRC造10階建て
- 取引態様
- 売主
- 管理形態
- 全部委託(日勤)
- 管理費
- 9,600円/月
- 修繕積立費
- 9,600円/月
- その他情報
- 駐車場:22,000円/月
駐輪場:600円/月
バイク置場:1,000円/月
※現況と図面の相違があった場合、現況を優先致します。


