メインステージ天王寺サイドシティ
成長し続ける都市「天王寺」の東、閑静なエリアに誕生。
大阪の山の手「上町台地」。
歴史に裏付けられたこの地で華やかに成長を続ける都市、それが天王寺です。
オフィス、ショッピングに加えキャンパスの賑わいを見せる
「あべのハルカス」を望んで誕生します。
物件概要
- 物件名
- メインステージ天王寺サイドシティ
- 所在地
- 大阪府大阪市東住吉区桑津1丁目50-7
- アクセス
- JR大和路線「東部市場前」駅南口 徒歩10分
JR大阪環状線「寺田町」駅北口 徒歩12分
近鉄南大阪線「河堀口」駅北口 徒歩12分
JR阪和線「美章園」駅東口 徒歩15分
- 構造
- RC造 10階 建て
- 総戸数
- 55戸(管理人室1戸を含む)
- 販売戸数
- 54戸
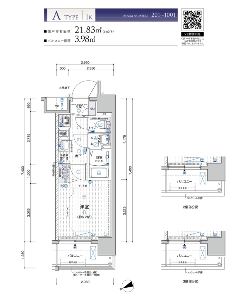
- 間取り
- 1K(54戸)
- 専有面積
- 20.72㎡~21.83㎡

