清水谷ハウス 303号室
上町台地の静寂と、27階建て免震タワーの安心感。築年数を感じさせない、清潔感あふれる住空間。
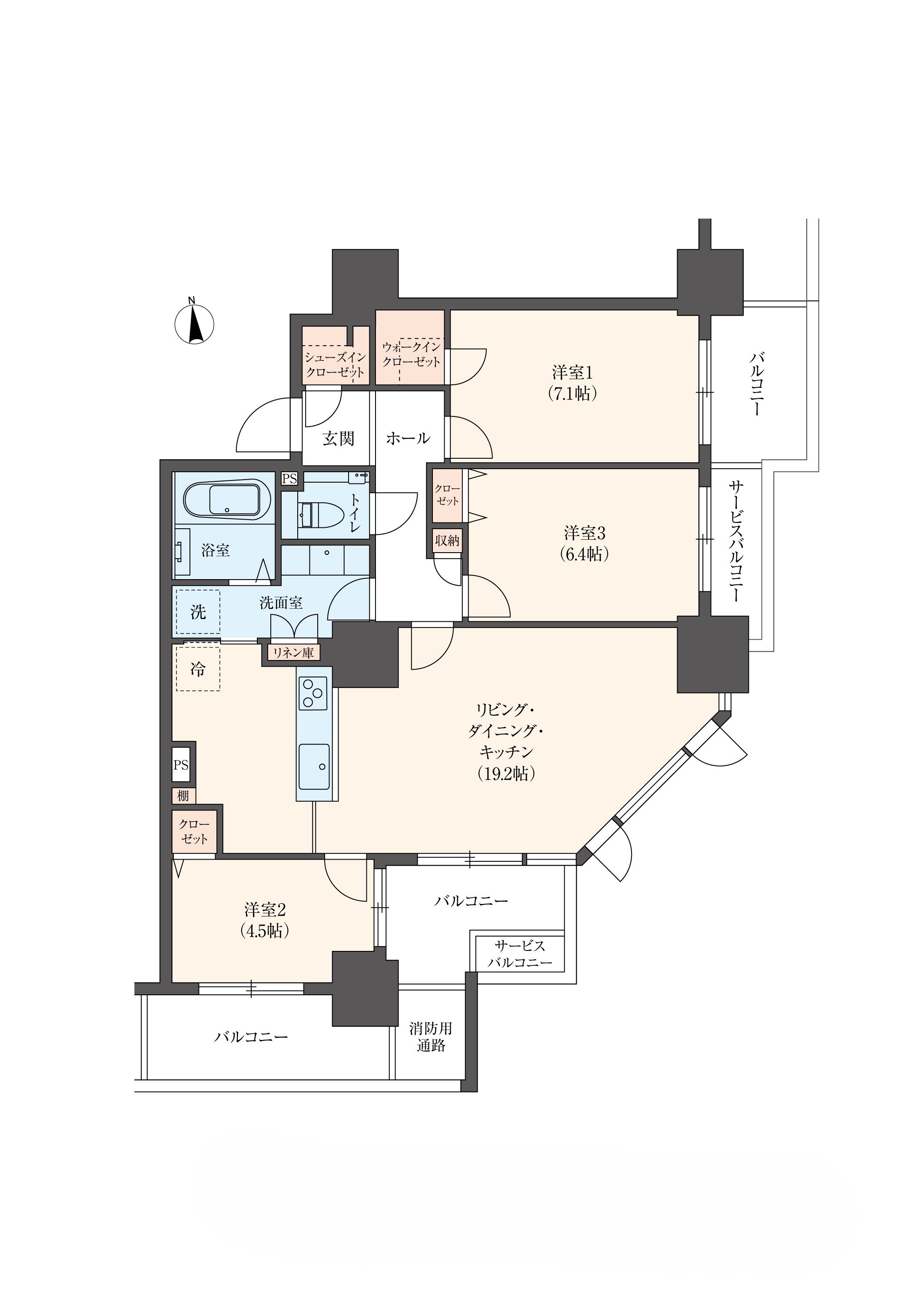
間取り
360°コンテンツ
専有部
リノベーション内容
2026年1月 内装リノベーション完了
LIXIL製 システムキッチン新規交換/LIXIL製 ユニットバス新規交換/LIXIL製 トイレ新規交換/Panasonic製 建具・収納新調/全室天井壁クロス張替え/全室フロアタイル張替え/ダウンライト等照明器具新調
物件特徴・設備
- オートロック
- 宅配ボックス
- 2駅利用可能
- TVモニター付
インターフォン - システムキッチン
- IHクッキングヒーター
- 食器洗浄乾燥機
- 対面キッチン
- 二面バルコニー
- 収納スペース
- シューズインクローゼット
- 追い焚き機能
- 駅徒歩10分以内
- スーパー徒歩10分以内
- 小学校徒歩10分以内
- 中学校徒歩10分以内
- 南向き
- タワーマンション
アクセス
〒543-0011
大阪府大阪市天王寺区清水谷町14-18
大阪メトロ長堀鶴見緑地線「玉造」駅 徒歩約7分
大阪メトロ長堀鶴見緑地線・谷町線「谷町六丁目」駅 徒歩約10分
JR大阪環状線「玉造」駅 徒歩約12分
【周辺環境】
大阪市立真田山小学校 徒歩約7分
大阪市立高津中学校 徒歩約6分
大阪市立真田山幼稚園 徒歩約9分
ライフ 清水谷店 徒歩約6分
ローソン 空堀町店 徒歩約7分
明生第二病院 徒歩約15分
物件詳細
- 郵便番号
- 〒543-0011
- 所在地
- 大阪府大阪市天王寺区清水谷町14-18
- 用途地域
- 第二種住居地域
- 土地権利
- 所有権
- 間取り
- 3LDK
- 専有面積
- 82.99㎡
- バルコニー面積
- 17.69㎡(サービスバルコニー面積:4.31㎡)
- 築年月
- 2000年8月
- 総戸数
- 91戸
- 構造・規模
- 鉄筋コンクリート造(RC)27階地下1階建て/3階部分
- 現況
- 空室
- 引渡時期
- 相談
- 取引態様
- 売主
- 管理会社
- 株式会社長谷工コミュニティ
- 管理形態
- 全部委託、日勤
- 管理費
- 19,920円/月
- 修繕積立費
- 24,900/月
- その他情報
- 駐車場使用料:25,000~30,000円/月
バイク置場使用料:1,500円/月
駐輪場使用料:2200~500円/月
ペット飼育:可
テレビ視聴:CATV、BS・110°CSアンテナ設置
インターネット:NTT、KDDI、㈱オプテージ
※写真にあります備品(家具家電)は販売価格に含まれません。ご了承ください。
※図面と現況が相違する場合は、現況を優先といたします。

















