メインステージ立川Ⅴ
新たな時代を感じさせる施設や建物が続々と登場し、その表情を大きく変えた東京都立川市。
「メインステージ立川Ⅴ」は、大規模商業施設が集積する立川駅より徒歩9分に誕生します。
賑わう駅前エリアを掌中にする優れた都市機能、国営昭和記念公園も控えた豊かな自然。
そして、都心をダイレクトに結ぶ、軽快な交通アクセスも自在に使いこなす日常へ。
進化する街「立川」で、もっと都市をスマートに愉しむ暮らしが始まります。
物件概要
- 物件名
- メインステージ立川Ⅴ
- 所在地
- 東京都立川市錦町1丁目14番20号
- アクセス
- JR中央線・青梅線・南武線「立川」駅 徒歩9分
多摩都市モノレール「立川南」駅 徒歩10分
- 構造
- RC造 14階 建て
- 総戸数
- 80戸(非分譲店舗1戸、管理員室1戸を含む)
- 販売戸数
- 78戸
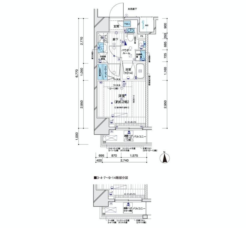
- 間取り
- 1K(78戸)
- 専有面積
- 21.25㎡

