メインステージ横濱阪東橋
開港以来、西洋文化の玄関口として独自の文化を育み、発展を続けてきた街「横浜」。先進と伝統、そして異国情緒と自然が心地よく融合するこの街は、「住みたい街」として常に人々の憧憬として愛されてきました。他の場所にはない、多彩な魅力を知るすべての人のために「メインステージ横濱阪東橋」が誕生します。
物件概要
- 物件名
- メインステージ横濱阪東橋
- 所在地
- 神奈川県横浜市南区浦舟町5丁目76番地5
- アクセス
- 横浜市営地下鉄ブルーライン「阪東橋」駅 徒歩6分
横浜市営地下鉄ブルーライン「吉野町」駅 徒歩7分
京急本線「黄金町」駅 徒歩10分
- 構造
- RC造 11階 建て
- 総戸数
- 70戸(管理員室1戸を含む)
- 販売戸数
- 69戸
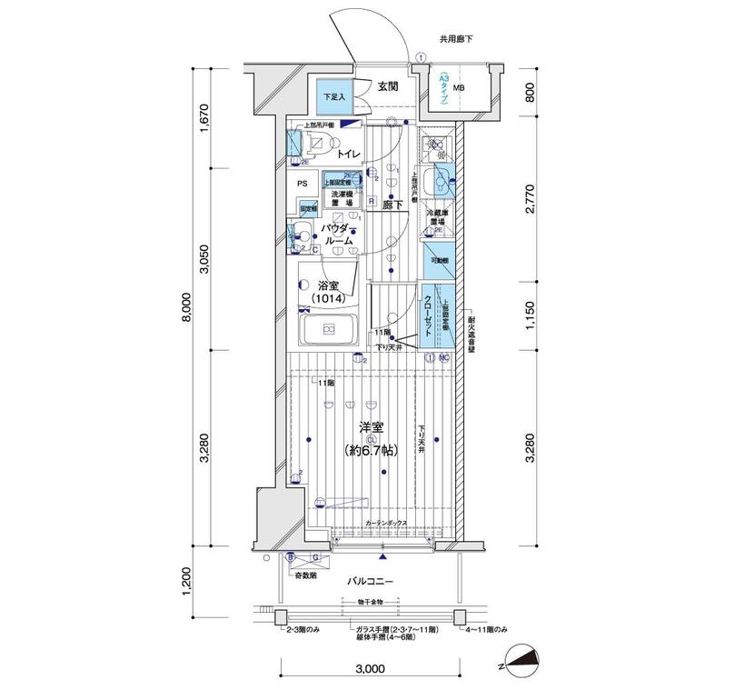
- 間取り
- 1K(69戸)
- 専有面積
- 22.35㎡~24.00㎡

