メインステージ板橋本町
都営三田線「板橋本町」駅から徒歩4分。都心へのダイレクトアクセスが叶う利便性と、
美しく緑豊かな景観を兼ね備えたこのロケーションに「メインステージ板橋本町」が誕生します。
ときに感性を刺激し、またときには安らぎに癒される暮らしが、ここにあります。
物件概要
- 物件名
- メインステージ板橋本町
- 所在地
- 東京都板橋区宮本町14番5
- アクセス
- 都営三田線「板橋本町」駅 徒歩5分
- 構造
- RC造 7階 建て
- 総戸数
- 85戸(非分譲住戸1戸、管理員室1戸を含む)
- 販売戸数
- 83戸
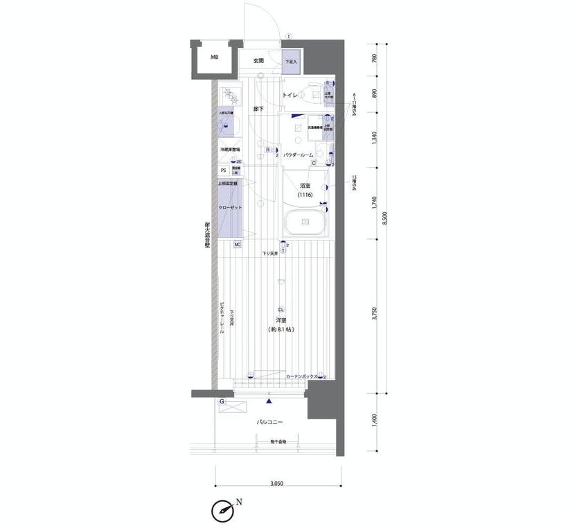
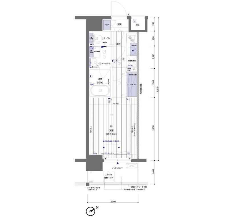
- 間取り
- 1K(84戸)
- 専有面積
- 25.50㎡~25.92㎡

