メインステージ両国Ⅱ
江戸の歴史を伝える伝統的な街、両国。
古くからものづくりが盛んだった墨田エリアは時代を超えて今もその伝統が受け継がれています。
都心への至近性が高く、歴史と伝統が息づき、墨田川や旧安田庭園など水も緑も身近に感じられる環境。
隅田川沿いには「隅田川テラス」が整備され、ウォーターフロントの開発、駅前では再開発計画が進められ
東京を代表する地域として、今後さらなる発展が期待されています。
物件概要
- 物件名
- メインステージ両国Ⅱ
- 所在地
- 東京都墨田区緑1丁目27番9
- アクセス
- 都営大江戸線「両国」駅 徒歩2分
JR総武線「両国」駅 徒歩5分
- 構造
- RC造 12階 建て
- 総戸数
- 45戸(非分譲住戸1戸、非分譲診療所1戸、管理員室1戸を含む)
- 販売戸数
- 42戸
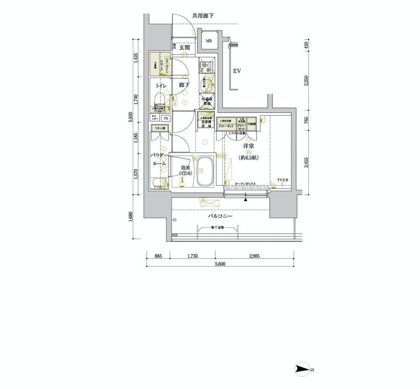
- 間取り
- 1K(30戸)、1LDK(12戸)
- 専有面積
- 25.59㎡~41.90㎡

