メインステージ三ノ輪WEST
「東京」駅からわずか6km圏内。この距離は「新宿」駅や「渋谷」駅と同等な場所に位置します。
「メインステージ三ノ輪WEST」は、銀座・六本木など、都心の主要スポットをダイレクトに結ぶ、東京メトロ日比谷線「三ノ輪」駅へ徒歩4分の利便性溢れる立地に誕生します。
ここは、江戸文化の面影や、旬なTOKYOのスポットも身近に見つけられる場所。
ただ便利なだけでない、寛ぎや人の温もりも感じられる、多様な魅力に満ちたこの街で、理想の東京生活が始まります。
物件概要
- 物件名
- メインステージ三ノ輪WEST
- 所在地
- 東京都台東区三ノ輪2丁目2番3
- アクセス
- 東京メトロ日比谷線「三ノ輪」駅 徒歩4分
JR常磐線・東京メトロ日比谷線・つくばエクスプレス「南千住」駅 徒歩8分
都営荒川線「三ノ輪橋」駅 徒歩7分
- 構造
- RC造 12階 建て
- 総戸数
- 51戸(管理人室1戸を含む)
- 販売戸数
- 50戸
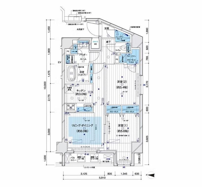
- 間取り
- 1K(34戸)、1LDK(11戸)、2LDK(5戸)
- 専有面積
- 25.35㎡~54.24㎡

