メインステージ上板橋
都心を間近に見据え、オンの日もオフの日も、全てを豊かにしてくれる街<上板橋>。
池袋駅直通の優位性、多彩な生活施設が集う街並みに、メインステージ上板橋は誕生します。
伸びゆく駅前エリアの利便性と周辺にあふれる緑の潤いを、同時に享受できるのもうれしい限り。
ここ上板橋の地で、満ち足りたライフスタイルが始まります。
物件概要
- 物件名
- メインステージ上板橋
- 所在地
- 東京都練馬区錦1丁目33番1
- アクセス
- 東武東上線「上板橋」駅 徒歩9分
- 構造
- RC造 5階 建て
- 総戸数
- 50戸(管理員室1戸を含む)
- 販売戸数
- 49戸
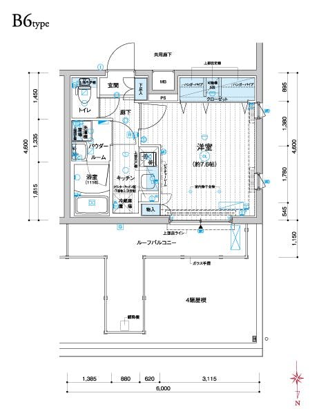
- 間取り
- 1K(49戸)
- 専有面積
- 26.25㎡~27.60㎡

